Teren intravilan 1.375 mp cu Proiect autorizat pentru duplex, Feleacu - ID 6796

Teren intravilan 1.375 mp cu Proiect autorizat pentru duplex, Feleacu de vanzare

, Feleacu

ID Oferta: 6796, Actualizat la: 9.3.2026

Pret: 265.000€

Descriere teren

City Imobiliare va propune spre vanzare un Teren Intravilan cu suprafata de 1.375 mp, situat in satul Feleacu, judetul Cluj, pe strada Valea Capriorii.
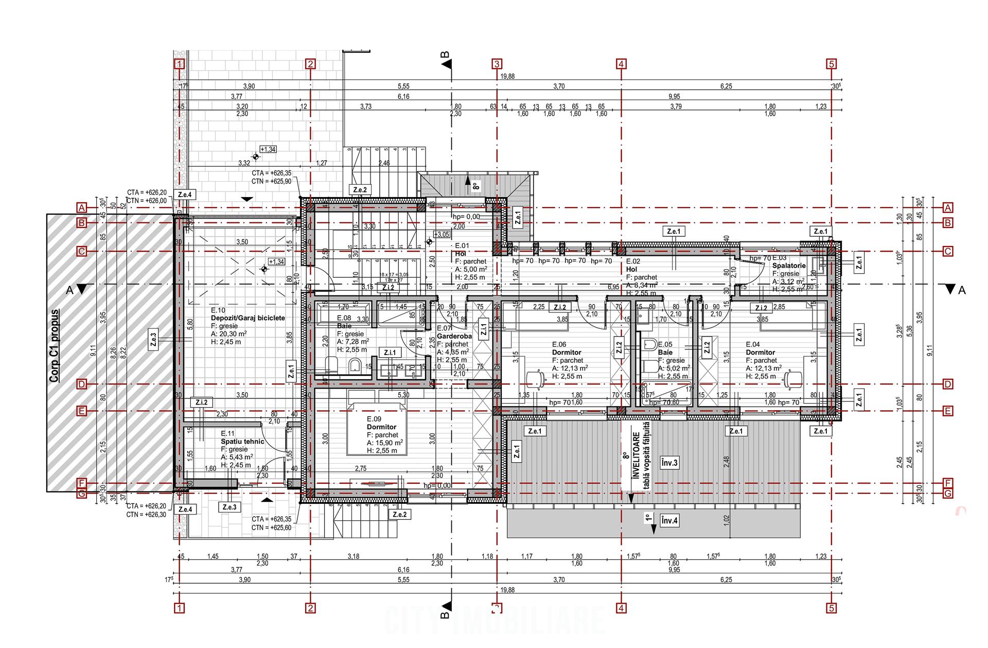
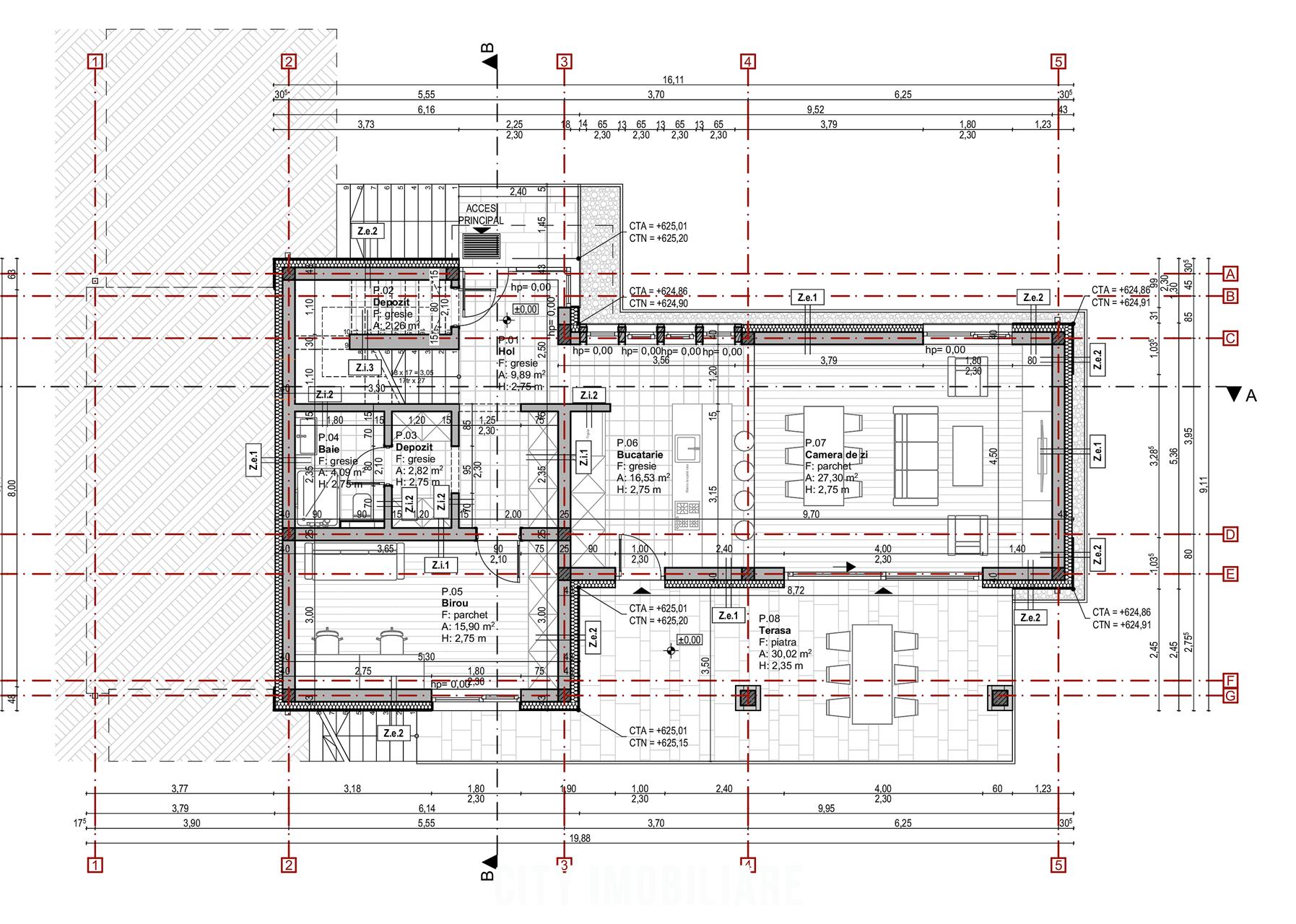
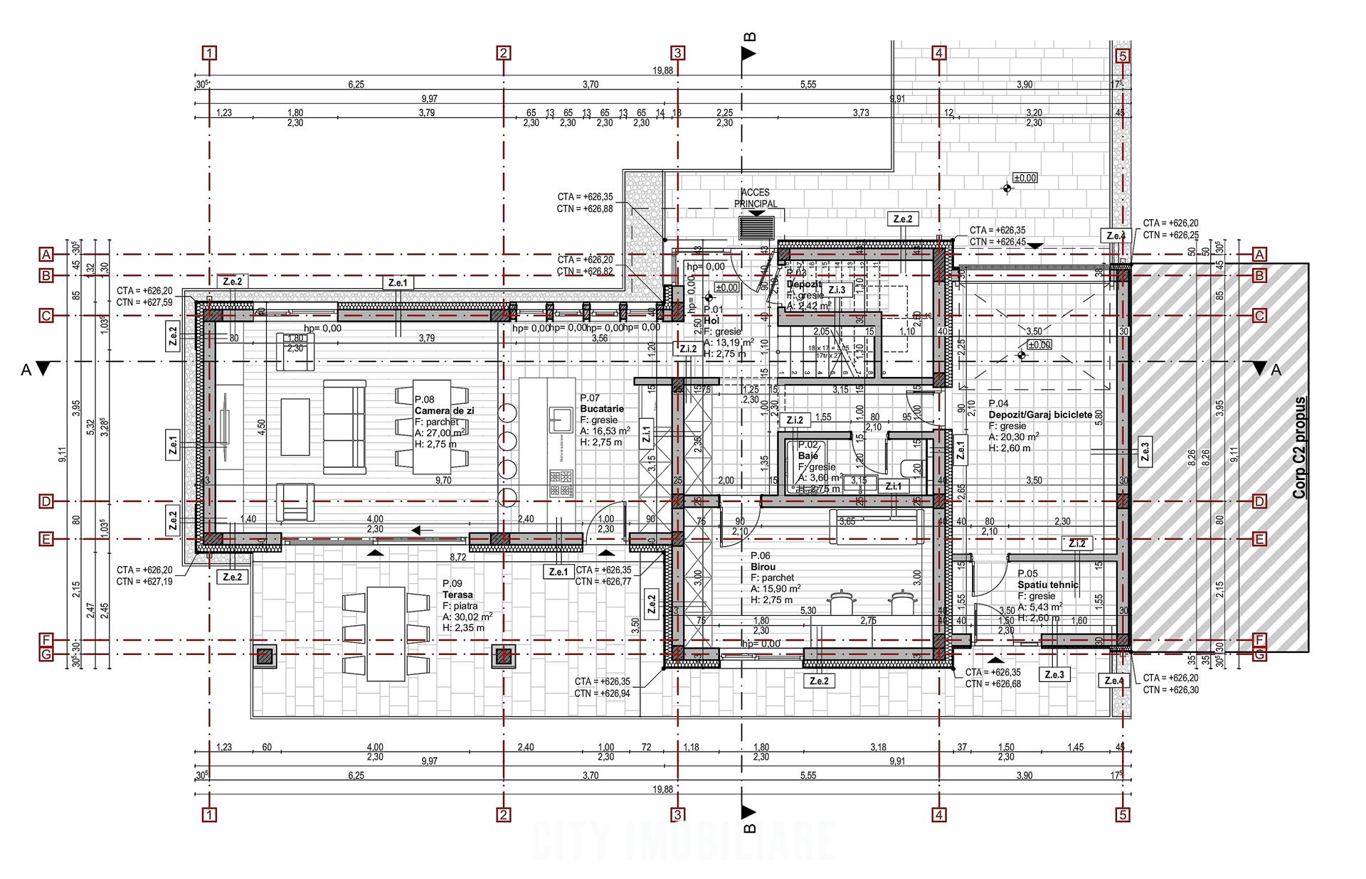
Terenul dispune de Autorizatie de Construire eliberata in data de 03.03.2026 pentru doua duplexuri alipite prin garaje.
Drumul de acces este asfaltat, iar toate utilitatile sunt disponibile pe teren: apa, curent electric si gaz.
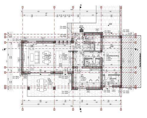
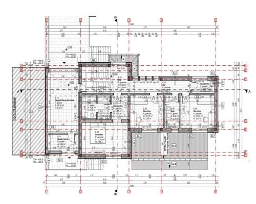
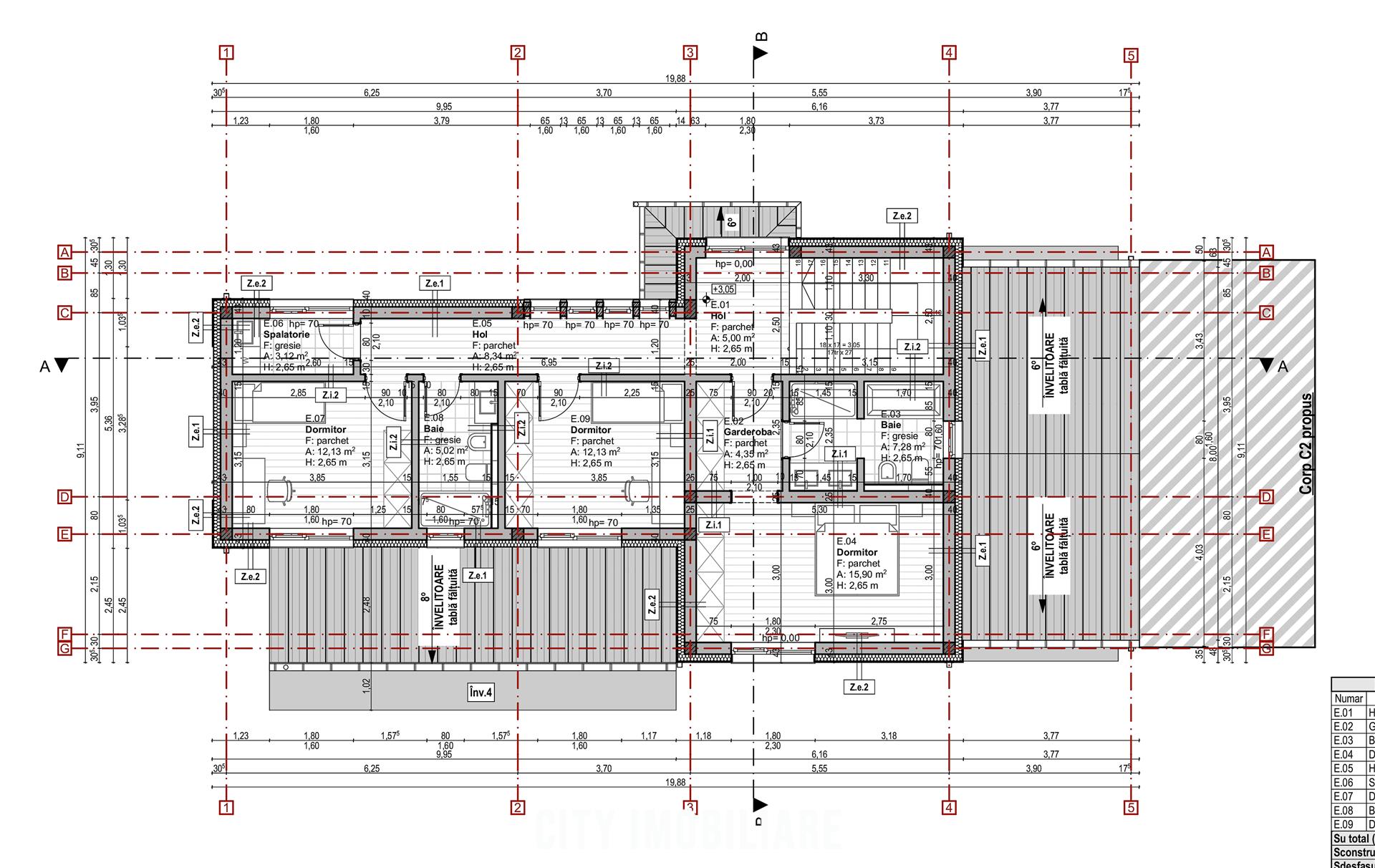
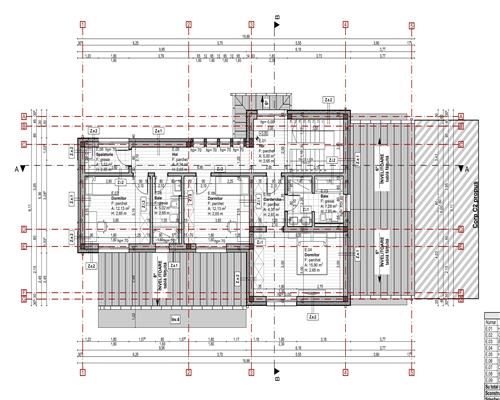
Proiectul autorizat prevede locuinte tip duplex, fiecare unitate avand o Suprafata Utila de aproximativ 180 mp + terasa de 30 mp.
Compartimentare propusa:
Parter: living open space cu bucatarie, birou, baie, spatiu tehnic, hol cu spatiu de depozitare, garaj, terasa cu acces din living si bucatarie
Etaj: 3 dormitoare, 2 bai, garderoba, spalatorie, hol. Fiecare unitate beneficiaza de garaj propriu si 2 locuri de parcare in fata casei.
Pentru mai multe detalii sau pentru programarea unei vizionari, nu ezitati sa ne contactati.
Modalitate de plata: Achizitie cu plata cash | Credit Bancar Pentru orice alte detalii, nu ezitati sa ne contactati. ID intern: 6796.
Comision 2%. Mai multe poze puteti vedea pe site-ul nostru: https://www.cityimobiliare.ro

Caracteristici teren

  • Zona:
  • Suprafata: 1375 mp
  • Reper:
  • Fronturi: 1
  • Localizare: Intravilan
  • Deschidere: 1 ml
  • Tip teren: Construibil

Contacteaza agent