Spatiu comercial, S120mp, 4 parcari, parter, Europa - ID 6732

Spatiu comercial, S120mp, 4 parcari, parter, Europa de vanzare

Europa, Cluj-Napoca

ID Oferta: 6732, Actualizat la: 19.1.2026

Pret: 270.000€

Descriere spatiu comercial

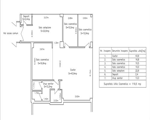
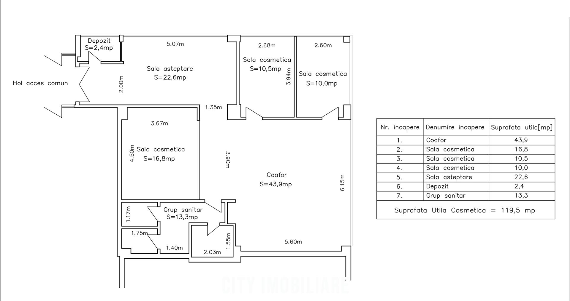
City Imobiliare va propune spre vanzare un Spatiu Comercial situat in mun. Cluj-Napoca, in cartierul Europa, cu o suprafata utila de 120 MP (vezi schita din fotografii), avand o inaltime a tavanelor de 2,90 metri.

Proprietatea este amplasata la parterul unui bloc de 5 etaje, construit in anul 2008, izolat termic, clasa energetica "B".

Spatiul beneficiaza de acces facil la drum si dispune de toate utilitatile necesare: apa, gaz, curent electric, canalizare centralizata.

In pret sunt incluse 4 locuri de parcare exterioare!

Acest spatiu este potrivit pentru diverse destinatii precum salon de infrumusetare, sala de sport, restaurant, showroom, tipografie, birou, etc.

Modalități de plata: Achiziție cu plata cash  | Credit Bancar   Pentru mai multe informatii, nu ezitati sa ne contactati. ID 6732

Comision 2%

Caracteristici spatiu comercial

  • Numar Camere: 6
  • Zona: Europa
  • Suprafata utila: 120 mp
  • Reper:
  • Tip Spatiu: In apartament bloc
  • Structura: Caramida
  • Vitrina: da ml

Caracteristici generale spatiu comercial

  • Acces Spatii:Marfa Auto Pietonal
  • Calorifere:Da
  • Destinatie Spatii:Restaurant/bar Fast food Birouri Supermarket Cafenea/ceainarie Reprezentanta Magazin Casino Casa pariuri
  • Dispunere Spatii:Compartimentat Intrare separata
  • Incalzire Casa:Centrala Termica
  • Lift:Lift
  • Materiale:Caramida Porotherm
  • Stadiu Finisare:Finalizat
  • Strazi:Asfaltate
  • Structura Casa:Caramida
  • Utilitati:Curent Apa Canalizare Gaz CATV Telefon Internet

Contacteaza agent