Apartament 2 camere decomandat, Park Like, Iulius Mall - ID 6652

Apartament 2 camere decomandat, Park Like, Iulius Mall de vanzare

Intre Lacuri, Cluj-Napoca

ID Oferta: 6652, Actualizat la: 13.11.2025

Pret: 185.000€

Descriere apartament

City Imobiliare Va propune spre vanzare apartament cu 2 camere Decomandat, situat in mun. Cluj-Napoca, cartierul Intre Lacuri,  zona Iulius Mall, complexul Park Like.

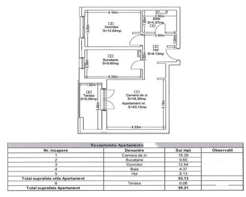
Apartamentul este intr-un imobil nou, construit in anul 2020, izolat termic, clasa energetica a cladirei "B", dotat cu lift, disponibil la etajul 4 din 10, cu o suprafata utila de 53 mp + 6 mp balcon.

Compartimentare: Living, bucatarie ,baie, dormitor, hol, balcon cu acces din living.

Apartamentul se vinde la stadiul semifinisat, oferind posibilitatea personalizarii complete dupa propriul gust, dotat cu centrala proprie.

Modalitate de plata: Achizitie cu plata cash | Credit Bancar Pentru orice alte detalii, nu ezitati sa ne contactati. ID intern: 6652.

Comision 2%. Mai multe poze puteti vedea pe site-ul nostru: https://www.cityimobiliare.ro

Caracteristici apartament

  • Zona: Intre Lacuri
  • Suprafata utila: 53 mp
  • Confort: 1 sporit
  • Compartimentare: decomandat
  • Etaj: 4/10
  • Numar Bai: 1
  • Numar Balcoane: 1
  • Numar Camere: 2
  • An Constructie: 2020

Caracteristici generale apartament

  • Acces:Fata
  • Acces internet:Cablu Fibra optica Wireless
  • Balcoane:Nu este inchis
  • Bucatarie:Da
  • Calorifere:Da
  • Clasa Energetica:C
  • Contorizare:Apometre Contor electric Contor gaz
  • Destinatie:Locuinta
  • Dotari:Wifi
  • Electrocasnice:Fara
  • Ferestre:PVC
  • Geam baie:Nu
  • Incalzire:Centrala proprie
  • Interfon:Interfon
  • Izolatii termice:Exterior
  • Lift:Lift
  • Mobilat:Nemobilat
  • Pereti:Var/Huma
  • Podele:Beton
  • Servicii:Administrare
  • Stadiu Finisare:Semifinisat
  • Strazi:Asfaltate
  • Structura Casa:Caramida
  • Tip Bloc:Bloc
  • Tip Structura Bloc:Caramida
  • Usa intrare:Metal
  • Usi:Fara
  • Utilitati:Gaz Canalizare Apa Curent
  • Vecinatati Spatii:Autobuz Zona comerciala Banca Supermarket Cinema Fastfood Benzinarie Piata Hotel Parc Mall Centru universitar Scoala/gradinita Terenuri
  • Vedere:Fata
  • Zidarie:Caramida

Contacteaza agent

Oferte similare